5178 - Correggio
- € 435.000,00
- In vendita
RESIDENZIALE "IL CORREGGIO"
ZONA FATIMA - Ultime 2 unità disponibili!!
Consegna Giugno 2026!!
NUOVO in classe A4.
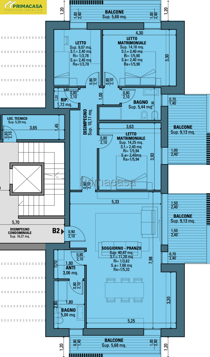
Appartamento al primo piano con ampia loggia , internamente, così composta:
- Zona giorno openspace con cucina a vista e terrazzo
- 3 camere da letto con affaccio su terrazzi
- doppi servizi
- ripostiglio
- locale tecnico
- garage da 37 mq (CON DETRAZIONE FISCALE DEL 50% SUL COSTO DI COSTRUZIONE)
- cantina 14 mq
- posto auto di proprietà
IMPIANTISTISTICA
- RISCALDAMENTO a pavimento
- SPLIT caldo e freddo
- VMC (ventilazione meccanica controllata)
- 3 KW di fotovoltaico
Per la fornitura dei pavimenti, l’impresa indicherà primarie aziende sul territorio locale, in cui recarsi per visionare il materiale disponibile tra una vasta scelta di materiali.
Il capitolato, già ricco e di pregio, non toglie, comunque, la possibilità di SCEGLIERE LE FINITURE FINALI , per personalizzare la soluzione e incontrare i gusti di chi acquista.
Caratteristiche principali
Efficienza energetica
Stampa annuncio
- Scarica la scheda dell'immobile Scarica
Accessori
Indirizzo e mappa
via asioli 2/c - Correggio, Reggio Emilia
